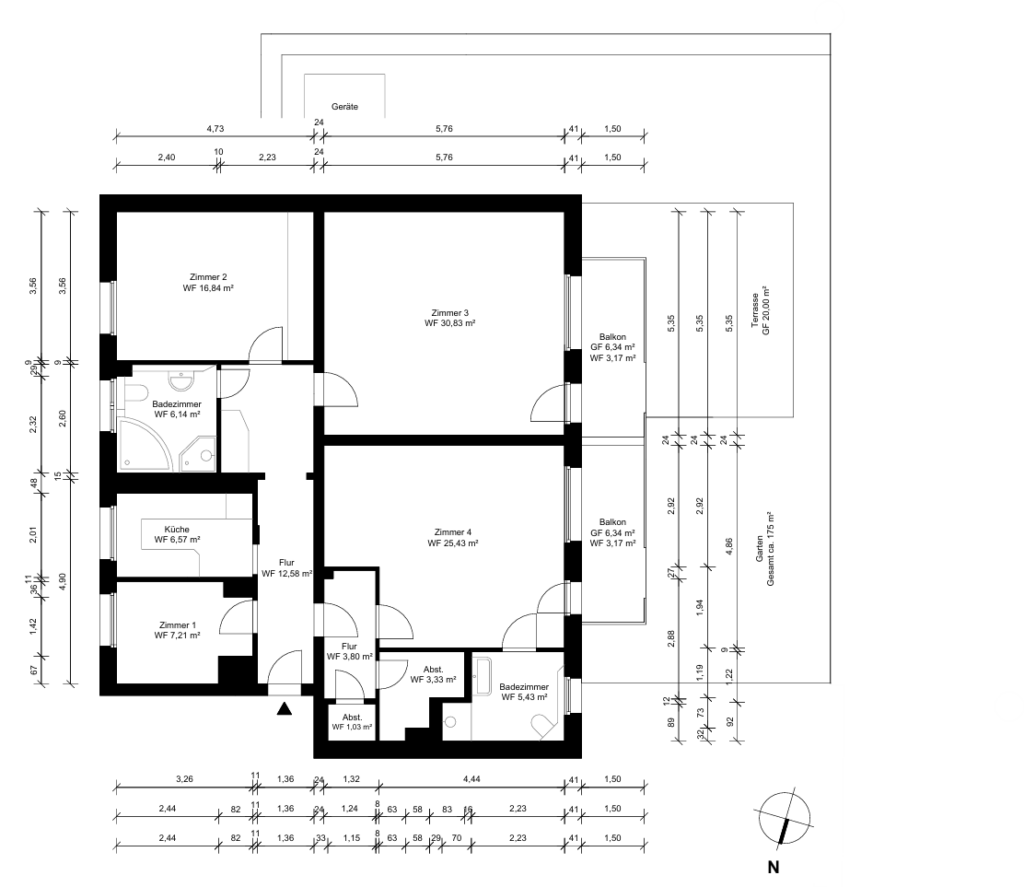
Diese im Hochparterre gelegene 4-Zimmer-Wohnung bietet auf ca. 125,73 m² Wohnfläche eine angenehme Großzügigkeit und eine flexible Raumaufteilung. Ursprünglich aus zwei Einheiten zusammengelegt und heute auch grundbuchlich als eine Wohnung geführt, ergibt sich ein durchdachter Grundriss mit vielseitigen Nutzungsmöglichkeiten.
Ein klarer Mehrwert ist der direkt von der Wohnung zugängliche Garten mit ca. 175 m² zur alleinigen Nutzung. Die Fläche ist der Wohnung fest zugeordnet und schafft eine spürbare Erweiterung des Wohnraums. Eine Strangsanierung in der Wohnung ist in 2025 erfolgt. Die Elektrischen Leitungen und die Fenster wurden in 2005 ausgetauscht. Alle Zimmer sind mit elektrischen Jalousien an den Fenstern ausgestattet. Zudem wurde im Jahr 2010 ein hochwertiger Parkettfußboden verlegt.
Die Aufteilung umfasst vier Zimmer sowie zwei Badezimmer – eines mit Dusche, das andere mit Dusche und Badewanne. Damit eignet sich die Wohnung gut für Haushalte mit höherem Platzbedarf oder unterschiedlichen Nutzungsansprüchen.
Ein Stellplatz sowie ein eigener Kellerraum sind der Wohnung zugeordnet und ergänzen das Angebot praktisch.
Die Wohnung befindet sich in einem gepflegten Zustand und wird bezugsfrei an den Käufer übergeben.
Die Immobilie auf einen Blick:
- 4-Zimmer-Wohnung im Hochparterre
- Ca. 125,73 m² Wohnfläche
- Direkter Zugang zum Garten
- Ca. 175 m² Garten zur alleinigen Nutzung
- Zwei Badezimmer mit Deckenspots
- 1x mit Dusche
- 1x mit Dusche und Badewanne
- PKW-Stellplatz
- Separater Kellerraum
- LAN-Verkabelung
- Wird bezugsfrei übergeben
Das monatliche Hausgeld i.H.v. 650€ setzt sich wie folgt zusammen:
Umlagefähige Bewirtschaftungskosten i.H.v. 364,73€
Nicht umlagefähige Bewirtschaftungskosten i.H.v. 124,93€
Zuführung zur Erhaltungsrücklage i.H.v. 160€
Gerne zeigen wir Ihnen die Wohnung persönlich und beantworten Ihre Fragen im Detail. Für weitere Informationen oder zur Vereinbarung eines Besichtigungstermins stehen wir Ihnen jederzeit zur Verfügung.



































