Investieren Sie in eine besondere Gelegenheit an einem der gefragtesten Standorte Berlins! Diese attraktive Gewerbeeinheit in bester Lage von Charlottenburg bietet Ihnen eine unschlagbare Kombination aus Sichtbarkeit, Frequenz und Flexibilität. Umgeben von einer pulsierenden Mischung aus Gastronomie, Einzelhandel und Dienstleistungsbetrieben, profitieren Sie von einer erstklassigen Nachbarschaft und einer hohen Passantenfrequenz.
Aktuell wird die Einheit als Restaurant betrieben und beherbergt ein etabliertes Franchise-Konzept. Doch die Möglichkeiten sind vielfältig: Nutzen Sie die Immobilie als renditestarke Kapitalanlage oder verwirklichen Sie Ihre eigenen Geschäftsideen – sogar eine Übernahme des bestehenden Unternehmens ist möglich.
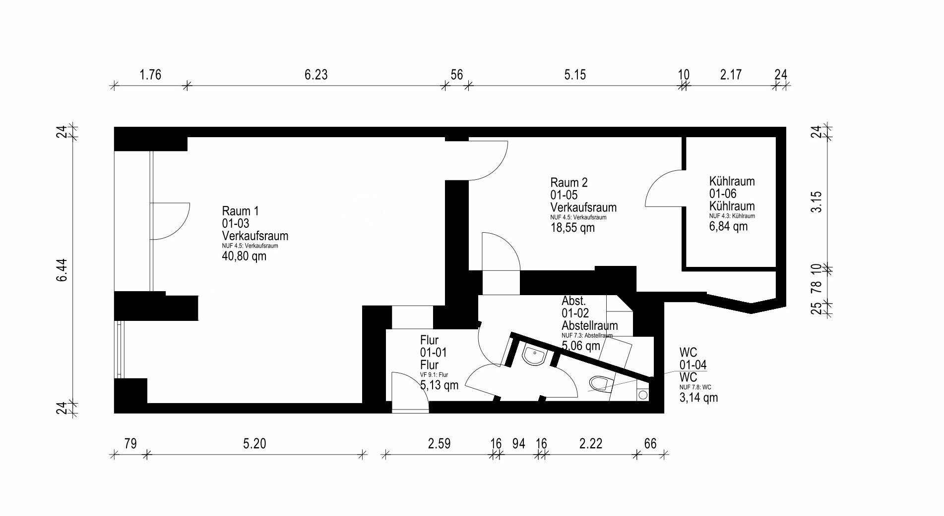
Mit einer Fläche von ca. 77,91 m² sowie einem exklusiv zugänglichen, großzügigen Lagerbereich im Keller bietet diese Gewerbeeinheit ideale Voraussetzungen für eine erfolgreiche Nutzung. Der lichtdurchflutete Gastraum mit Fensterfront zur Straße garantiert maximale Aufmerksamkeit, während der angrenzende Küchenbereich inklusive professionellem Kühlraum für optimale Arbeitsabläufe sorgt. Eine separate sanitäre Anlage rundet das Raumangebot ab. Das gesamte Inventar gehört den Mietern.
Im Hausdurchgang befindet sich noch eine separate Toilette die mit zur Gewerbeeinheit gehört.
Der seit dem 16.05.2008 bestehende Mietvertrag läuft noch bis zum 31.05.2028. Die aktuellen Mieter sind jedoch bereit, vorzeitig aus dem Mietverhältnis auszutreten – eine einmalige Chance für Eigennutzer und Investoren gleichermaßen!
Ein weiterer Pluspunkt: Das gesamte Gebäude wird in Kürze an das Fernwärmenetz angeschlossen, was eine moderne, nachhaltige und kosteneffiziente Wärmeversorgung sichert. Dank der herausragenden Anbindung an den öffentlichen Nahverkehr sowie der exzellenten Infrastruktur ist diese Gewerbeeinheit ein absolutes Juwel auf dem Berliner Markt. Lassen Sie sich diese Gelegenheit nicht entgehen!























