Ein Zuhause zum Wohlfühlen – dieses nachhaltig modernisierte Einfamilienhaus bietet Familien alles, was sie sich wünschen: viel Platz, moderne Technik, eine gemütliche Atmosphäre und eine hervorragende Lage. Hier treffen skandinavisch/britischer Stil, Energieeffizienz und Wohnqualität aufeinander.
Das gesamte Gebäude wurde 2024 mit nachhaltigen Materialien modernisiert: zirkuläre, emissionsarme Baustoffe, natürliche Dämmstoffe, ökologische Oberflächen und wasser- sowie energieeffiziente Systeme. Zukunftssicheres Wohnen in gesundem, schadstoffarmem Umfeld.
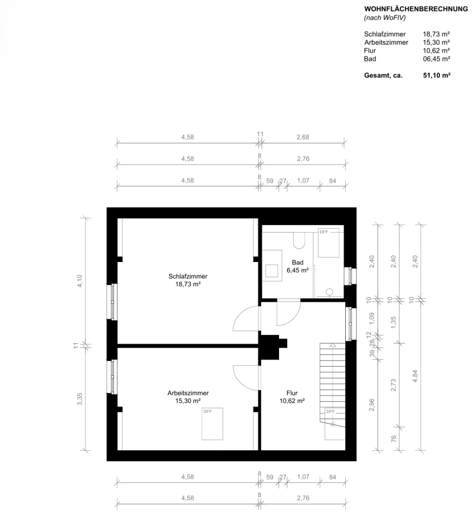
Mit einer Wohnfläche von ca. 134 m² und einer Nutzfläche von ca. 51 m², auf einem großzügigen Grundstück von ca. 684 m², bietet es den perfekten Raum für Familien, die Wert auf Stil, Komfort und Nachhaltigkeit legen.
Das Haus überzeugt durch seine moderne Haustechnik und energieeffiziente Ausstattung. Die Wärmepumpe sorgt für niedrige Heizkosten und ein angenehmes Raumklima – ein echter Vorteil für Familien, die nachhaltig und zukunftsorientiert wohnen möchten.
- English -
A home to feel good in – this sustainably modernized single-family home offers families everything they could wish for: plenty of space, modern technology, a cozy atmosphere, and an excellent location. Here, Scandinavian/British style, energy efficiency, and quality of living come together.
The entire building was modernized in 2024 using sustainable materials: circular, low-emission building materials, natural insulation, ecological surfaces, and water- and energy-efficient systems. Future-proof living in a healthy, low-pollutant environment.
With a living area of approx. 134 m² and a usable area of approx. 51 m², on a spacious plot of approx. 684 m², it offers the perfect space for families who value style, comfort, and sustainability.
The house impresses with its modern building services and energy-efficient fittings. The heat pump ensures low heating costs and a pleasant indoor climate – a real advantage for families who want to live sustainably and with an eye to the future.












































